方案说明
本案业主为自由职业者,原计划为装修出租用,对于房屋户型格局要求为常规三房,尽量少改动。业主希望在餐厅厨房的设计上加入吧台,增加空间的连接感和沟通性。包括主卫的改动,也满足了业主的需求。在本案落地后,因为落地效果业主很满意,所以放弃了用来出租的想法,搬进来自住了。整体上不管是客厅还是厨房还是主卧,设计都超过了业主的预期,因此业主也对我们有很高的评价。
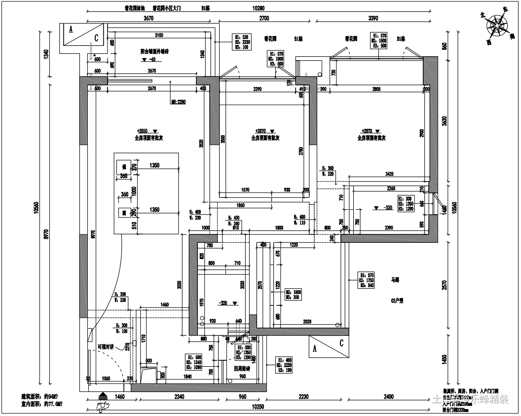
户型图

原始户型:
①厨房的设计显得空间拥挤,特别是入户区空间小,采光也不充足,挤压了餐厅空间,餐厅显得拥挤。
②厨房外阳台空间小不好利用,阻挡了室内采光和通风。
③主卫设计占用主卧空间,主卧入室视野太窄。
④客厅不够开阔,采光不够充足。

改造后:
①将厨房外阳台纳入厨房使用,改善采光和通风。
②将厨房外墙体拆除,将冰箱外移,餐厅空间得到扩大。
③将主卫墙体拆除改为玻璃,设计为五边形造型,为主卧空出更多空间,同时主卧入室视野更好。
④将客厅阳台纳入客厅使用,将客厅阳台隔断拆除,客厅开阔感得到加强。
客厅

对于房屋的设计,业主并没有提出过多的要求,细节简洁美观,看着舒适即可。业主更喜欢明亮的氛围,在室内的设计上,我们选择了更加明亮的色系,配合温和的灯光,客厅区域不管是在白天充足采光的情况下还是夜晚都能拥有最温馨明亮的环境。

电视背景运用岩板和木格栅、大理石的形式,将空间蕴含在平面内,层次和格局随处可见。简单的设计其实拥有无数细节,电视背景将插座和电线隐藏在了最下方大理石内,打造没有杂质的洁净平面。

在和餐厅的连接处,设计了一组酒柜用以收藏,酒柜作为无形隔断,分割平面,隔断空间。玻璃材质透出内部精美陈设,不自觉也被吸引。

沙发背景选择护墙板拼接,奶油色和咖色的碰撞,舒心和温暖在心底油然而生。沙发选择咖色落地皮质沙发,加上奶黄色懒人座椅,轻松闲适的氛围跃然而出。

沙发背景安装壁灯,这样在寂静的夜晚也能亮起一处微光,可以依靠在沙发上享受只属于自己的时光。
室内采用地板通铺的方式,打造更加柔暖的空间,加强了各空间的连通性,地面也更加舒展。
客厅吊顶没有采取常规的大平顶加无主灯的形式,中部平顶四周镂空,无主灯配合吊顶灯带,室内的灯光氛围做到见光不见物。
餐厅

餐厅主要功能区分为餐桌区、餐边柜、吧台区,作为家人聚集活动的主要区域,除了要拥有强大的收纳外,舒适轻松的环境也是最重要的。为了留出更多活动空间,我们将餐桌椅靠墙摆放,将餐边柜设计为和玄关柜酒柜一体,功能分区明确。餐边柜设计为全封闭式,能够最大程度隐藏柜内的杂乱,餐厅空间也因此能够保持最佳的洁净。

餐厅和厨房的交界处设计了一组吧台,吧台左侧设计一组收纳墙,平日和朋友在此处洽谈闲聊,或者在这里办公阅读,都是一个好去处。
吧台下方设计了少许收纳,不浪费空间,也能够增加餐厅的储物,一举两得。

除了休闲和储物功能外,吧台也增加了不同区域的沟通性,在吧台处能够和餐厅、客厅进行无障碍沟通,家人之间的连接也更加紧密。









