方案说明
本案为一家三口,屋主夫妻和一个可爱的女儿。这个房子作为以后给小孩上学住的常住房,在设计以及布局上需要考虑到未来十年以上的居住需求。屋主希望家里宽敞明亮温暖,布局上以开放式为主,将收纳尽可能藏起来,在风格上选择现代+法式的结合,会有简约明快的质感,也有优雅古典的魅力。女主人喜欢下厨,对于厨房的收纳要求比较高,希望厨房是干净整洁的,所以我们将厨房空间打开,中西厨分离,西厨与餐厅相结合,冰箱也移至外面,更为契合屋主一家的生活习惯。原阳台很大,一分为二一部分归于客厅,一部分并入儿童房,给小朋友打造独立的学习空间,便于以后使用。在整体的布置上,满足了一家三口的多种不同需求,以实现一个长居久安的温暖之家。
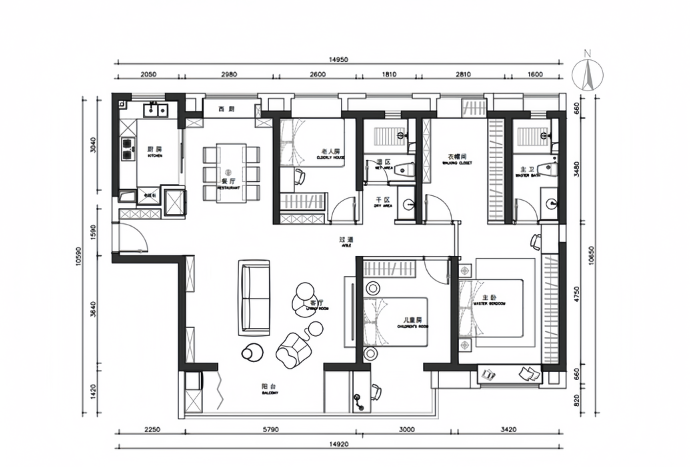
户型图

设计亮点: 1.于入户左手边定制收纳柜,满足日常出入的收纳置物需求; 2.对厨房墙体进行微调,移出安置于餐厨交界处,分担厨房压力且日常使用更为方便; 3.将原阳台一分为二,部分纳入客厅增加科通面积,儿童房也拥有独立学习区; 4.主卧动线调整,从衣帽间进入,避免卧室正对无入门,更具有私密性。
玄关

进门左手边背景墙定制整面玄关柜,做嵌入式设计视觉上更显简洁平整,纯白色通高柜满足一家三口的鞋子收纳需求,下方做抽屉悬浮地台设计,结合预留的位置留出换鞋区,拱形造型别致,白与亮橙色搭配明媚又丰富。 #玄关 #玄关柜 #全身镜
客厅

空间整体风格以现代与法式为主,在色系上选择白色打底,添加部分复古橘色调作为搭配点缀,丰富空间的复古气质与色彩层次,让家具有更为独特的视觉魅力。 #客厅 #沙发 #电视背景墙 #吊灯


客厅以平面吊顶为主,走廊处局部吊顶藏匿中央空调及新风系统等,既能避免压迫活动空间层高,又满足实际的使用需求。客厅顶面选择以石膏线条搭配雕花底座,结合黄铜复古吊灯,整体营造出简约且不失优雅的空间气质。 #客厅 #沙发 #电视背景墙 #吊灯


电视背景墙的设计打破常规,白色乳胶漆打底,辅以PU线条进行修饰,居中对称造型尽显大气优雅之美,墙角部分填充复古橘色系墙漆,通过同色块进行转角过度,强调层次感与视觉冲击,让家更为明媚。 #客厅 #电视柜 #电视背景墙 #茶几


客厅整体做开放式布局,沙发居中形成洄游动线,转角布艺落地沙发柔软亲肤,从视觉到触觉都给予屋主及家人更多的柔和治愈气息。 #客厅 #沙发 #沙发背景墙 #收纳柜


沙发背景墙定制储物柜,增加客厅收纳能力,两侧高柜搭配中间壁炉设计,同样的对称结构,与客厅墙面相呼应。两侧柜门选择拱形玻璃格子造型,复古且典雅,居中安装壁炉造型的雾化器,满足屋主对于换季时的空气湿度调节需求。 #客厅 #壁炉 #沙发背景墙 #收纳柜

客厅侧面走廊背景墙同样利用起来,靠墙定制边柜,嵌入式造型避免日常走动磕碰,拱形造型搭配橘色系柜体,配上复古壁纸,整体气质繁复魅力,增加客厅收纳的同时,气质更显优雅。 #客厅 #沙发 #电视背景墙 #收纳柜
客服热线:










