方案说明
这户人家三代同堂,居住着一位小女儿和奶奶,奶奶负责协助照顾孩子。女主人拥有大量衣物,因此希望主卧能够集睡眠、衣帽间和卫浴设施于一体。女儿钟情于粉色系,希望自己的房间以粉色为主调,并设置一个专属的秘密基地,满足学习和娱乐的需求。长辈房则仅要求具备安静的环境。根据户主的需求,设计师打造了一套现代轻奢风格的装修方案。主卧内配备了超大容量的衣帽间和带浴缸的卫浴设施。女儿的房间采用上下床设计,床铺下方用于休息,上方则设计成树屋,作为秘密基地,成为整个空间的亮点。此外,树屋还兼顾了学习和娱乐功能。
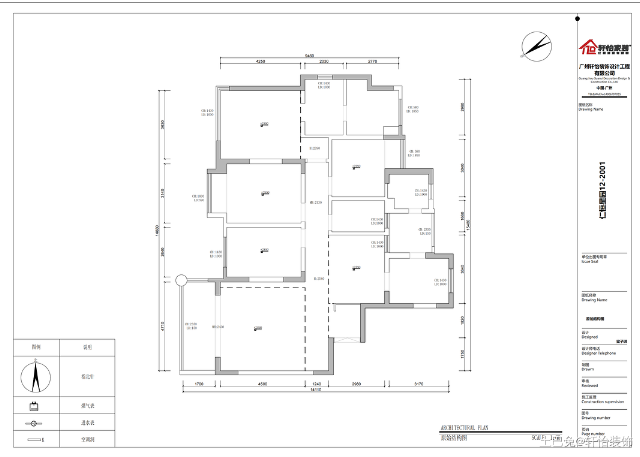
户型图

✅ 家里的女主人希望有一个超大容量的衣帽间和浴缸。
✅ 希望可以将餐厅和客厅一体化,这样可以显得空间大一点。
✅ 希望女儿的房间可以有睡觉的同时也有休闲娱乐和秘密基地的地方。

✅ 超大L形厨房,空间容纳厨房用具一应俱全。
✅ 儿童房梦幻般的粉色设计,加上上下床的树屋成为“秘密之地”。
✅ 厨房和餐厅隔绝客厅,客厅成为独立区域,视野更明了。
玄关

玄关的整体色调是以黑白灰为主,简洁大方。白色墙面搭配黑色边框装饰画,画中线条柔美,增添艺术氛围。

黑色开放格打破单调,展示着精致物件,实用且具观赏性。地面铺设浅色瓷砖,干净整洁。空间布局合理,兼具实用性与美观性,营造出舒适且时尚的入户环境。

一柜体设计独具匠心,通顶款式搭配无把手设计,利落又不失整体感。
客厅

棕色沙发搭配多色抱枕,色彩协调且富有层次感。沙发旁的黑色落地灯,造型简约又具设计感。墙上挂着抽象装饰画,与空间风格相呼应。

电视嵌入定制柜中,柜体以浅色调为主,搭配黑色开放格展示小摆件,简约中不失精致。顶部暗藏灯带,柔和光线勾勒出空间轮廓。

地面瓷砖带有纹理,增添空间质感。整体布局开放通透,软装布置精致,兼具时尚感与舒适度。

窗边休闲椅采用斑马纹与红色爱心搭配,个性又吸睛。旁边放置可爱的动物造型摆件,为空间增添趣味。

以中性色调为主,搭配简约造型家具。无主灯设计结合轨道灯与筒灯,营造出丰富的照明层次。

沙发前的组合茶几,黑白配色简洁大方,上面摆放着可爱摆件,尽显温馨氛围。
阳台

家政阳台采用现代简约设计,实用与美观兼具。洗衣机、烘干机上下叠放,释放地面空间,上方白色吊柜满足收纳需求。黑色墙面搭配圆形镜子,个性又时尚,下方洗手台配水龙头,方便预洗小件。

窗边放置清洁设备,规整有序。大面积窗户引自然光入室,视野开阔,让家务劳作也能享受自然景致。
客服热线:










